
Hidden landmark. Ideenwettbewerb landmarke Halde Duhamel, proposed a controversial symbolic hidden landmark in the artificial mountain Duhamel in Ensdorf, DE. International competition 2011 in collaboration with XVW

Hidden landmark. Ideenwettbewerb landmarke Halde Duhamel, proposed a controversial symbolic hidden landmark in the artificial mountain Duhamel in Ensdorf, DE. International competition 2011 in collaboration with XVW

ADD on, on ground and second-floor extension of a family home in the historic city center of Maastricht, NL. Commissioned in 2021, designed, executed, and completed in 2024.

Ministerie van Maak, a small piece of the grant alternative puzzle of possibilities to create a million new homes Initiative of ZUS and Mann. Our proposal for a strategie to build 10.000 homes next to national historic center of Muiden, NL.

Ministerie van Maak, a small piece of the grant alternative puzzle of possibilities to create a million new homes Initiative of ZUS and Mann. Our proposal for a strategie to build 10.000 homes next to national historic center of Muiden, NL.

DIY Stairway, custom stairs on a budget for a DIY interior project in Amsterdam Noord, NL. sketch design=execution design.

DIY Stairway, custom stairs on a budget for a DIY interior project in Amsterdam Noord, NL. sketch design=execution design.

Parallel worlds. Europan 11 competition, master plan on the border of the city and the flat rural landscape, Leeuwarden, NL. International competition in collaboration with Atelier 010 .

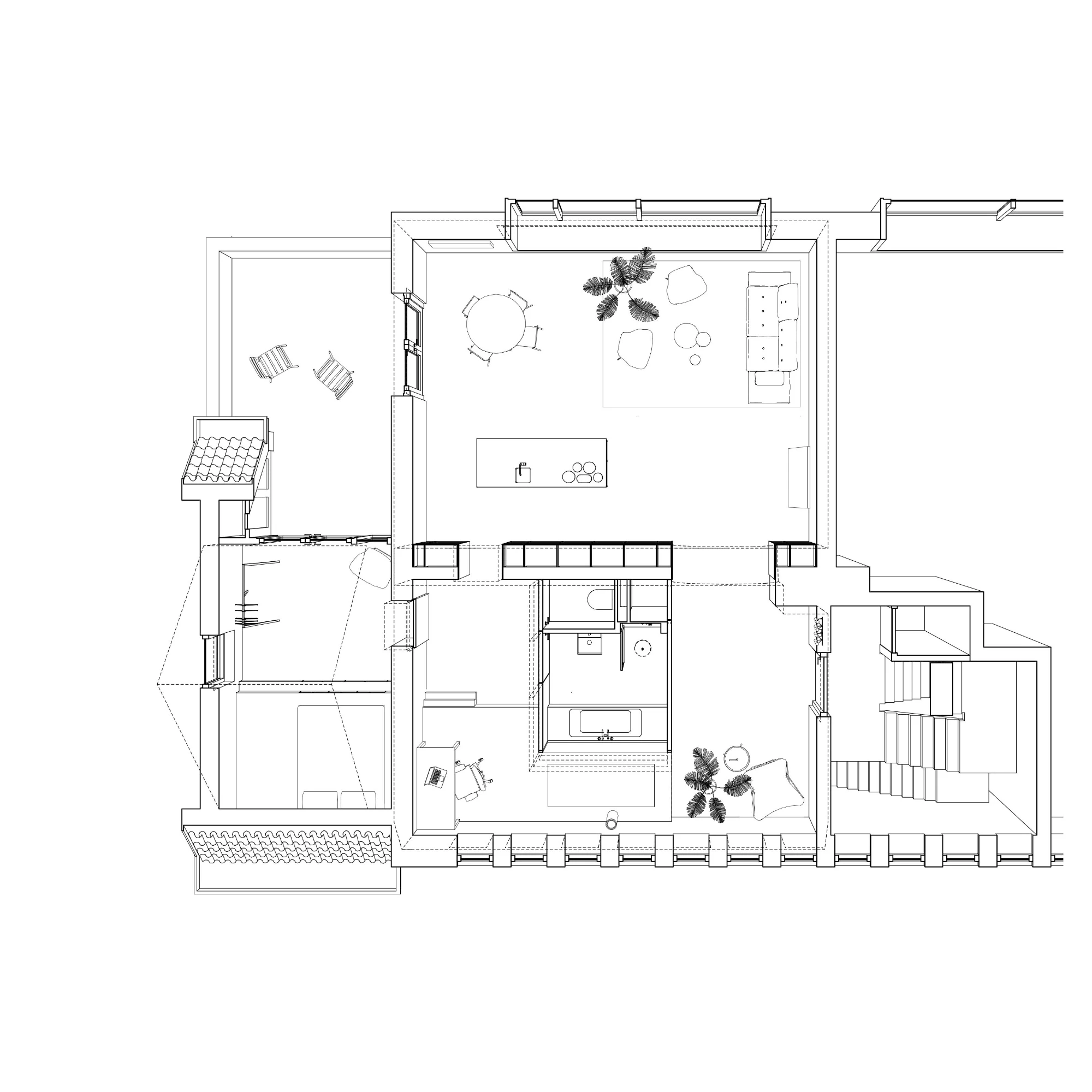
House in the Nord. Interior transformation of a small old working-class house in Amsterdam, NL 2018-2021 build.

House in the Nord. Interior transformation of a small old working-class house in Amsterdam, NL 2018-2021 build.

House in the Nord. Interior transformation of a small old working-class house in Amsterdam, NL 2018-2021 build.

Rebellious act, Proposal intervention in the urban fabric, connecting, activating exchanging by adding new program on an existing non interesting carpark on a crossroad of three very different neighbourhoods in Amsterdam East, NL.

Rebellious act, Proposal intervention in the urban fabric, connecting, activating exchanging by adding new program on an existing non interesting carpark on a crossroad of three very different neighbourhoods in Amsterdam East, NL.

Classroom apartment, adaptable interior plan for possible future scenarios of live, Amsterdam, NL 2015.

Classroom apartment, adaptable interior plan for possible future scenarios of live, Amsterdam, NL 2015.

Classroom apartment, adaptable interior plan for possible future scenarios of live, Amsterdam, NL 2015.

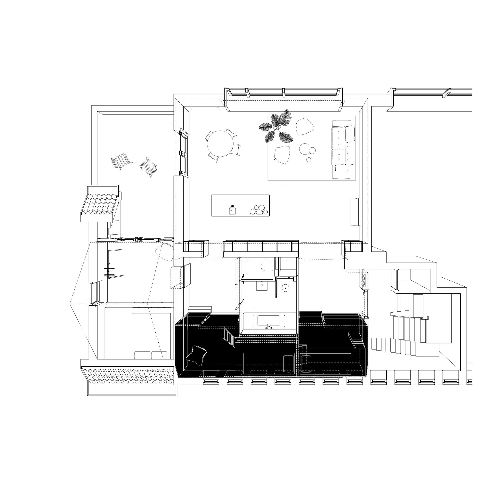
House in the Nord. Interior transformation of a small old working-class house in Amsterdam, NL 2018-2021 build.

House in the Nord. Interior transformation of a small old working-class house in Amsterdam, NL 2018-2021 build.

House in the Nord. Interior transformation of a small old working-class house in Amsterdam, NL 2018-2021 build.

House in the Nord. Interior transformation of a small old working-class house in Amsterdam, NL 2018-2021 build.

House in the Nord. Interior transformation of a small old working-class house in Amsterdam, NL 2018-2021 build.

House in the Nord. Interior transformation of a small old working-class house in Amsterdam, NL 2018-2021 build.